Simply click on the Favourite Button to add a design into your Favourite
BACK TO MAIN MENU

YOUR FAVOURITES

CLEAR ALL x CLOSE

We invited internationally recognised and award-wining Adelaide architect Max Pritchard to design this beautiful home.

This home is currently not on display

VIEW OUR DISPLAYS

Our collections are designed to suit a variety of lifestyles and budgets, whether you're buying your first home or upgrading to your next.
At Hickinbotham, we understand that every homeowner has unique needs. Get in touch with one of our friendly property consultants. They're here to help you along the way. 

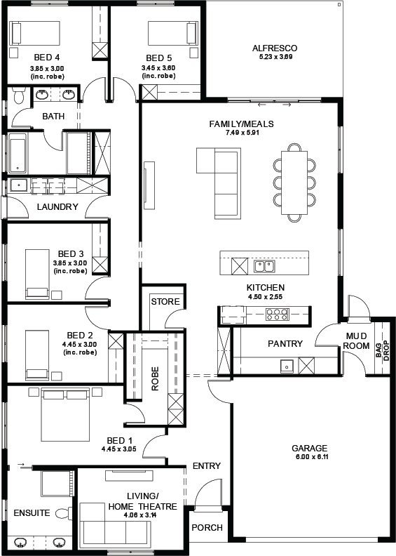
Floorplan

House Dimensions

  • 2
  • 5
  • 2
  • 2
  • House Depth21.00m
  • House Width15.00m
  • Min Block Width16.00m
  • Total288.78m2 / 31.08sqs*
*See terms and conditions for details
Enquire Now


HOUSE 
& LAND

Find a package
for this home

VIEW PACKAGES

HOME
LOANS
MADE
EASY

We will help you find
 the
right home loan to suit you

ASK US HOW

BECOME A HICKINBOTHAM VIP

Be the first to hear about latest news, special offers and industry tips